Mô tả
Nhà thờ họ là công trình mang giá trị tâm linh sâu sắc trong văn hóa người Việt, là nơi lưu giữ truyền thống gia tộc và thể hiện sự tôn kính đối với tổ tiên. Tại phường Sông Công, Thái Nguyên, nhu cầu xây dựng nhà thờ họ theo phong cách truyền thống ngày càng phổ biến, đặc biệt là các mẫu nhà thờ họ 3 gian giả gỗ với kiến trúc trang nghiêm và bền vững.
Dưới đây là mẫu bản vẽ thiết kế nhà thờ họ 3 gian giả gỗ sang trọng tại phường Sông Công do Vietnamarch thực hiện, nổi bật với kiến trúc cổ truyền, hệ mái ngói đỏ và không gian sân vườn thoáng rộng.
Mục lục
1. Văn hóa địa phương Sông Công – Thái Nguyên
Sông Công là một trong những khu vực có bề dày lịch sử và văn hóa lâu đời của tỉnh Thái Nguyên. Người dân nơi đây luôn coi trọng truyền thống gia tộc, phong tục thờ cúng tổ tiên và các giá trị văn hóa dòng họ.
Trong nhiều gia đình và dòng họ lớn tại Sông Công, việc xây dựng nhà thờ họ riêng là một nét đẹp văn hóa được duy trì qua nhiều thế hệ. Công trình không chỉ là nơi thờ cúng tổ tiên mà còn là địa điểm tụ họp của con cháu trong các dịp lễ tết, giỗ họ hay những sự kiện quan trọng của dòng tộc.
Chính vì vậy, các mẫu nhà thờ họ 3 gian truyền thống với mái ngói đỏ, cột gỗ hoặc bê tông giả gỗ luôn được ưu tiên lựa chọn nhằm giữ gìn nét kiến trúc cổ truyền Việt Nam.
2. Thông tin dự án
- Công trình: Nhà thờ họ 3 gian giả gỗ
- Địa điểm: Phường Sông Công, tỉnh Thái Nguyên
- Đơn vị thiết kế: Vietnamarch
- Phong cách kiến trúc: Nhà thờ họ truyền thống Bắc Bộ
- Kết cấu: Bê tông cốt thép giả gỗ
- Quy mô: Nhà thờ họ 3 gian kết hợp khu nhà phụ trợ phía sau
- Không gian: Sân vườn rộng rãi, bố trí cây xanh và lối đi xung quanh
Công trình được thiết kế nhằm tạo nên không gian thờ cúng trang nghiêm, đồng thời đảm bảo sự bền vững lâu dài trước điều kiện thời tiết.

3. Bản vẽ thiết kế mặt bằng
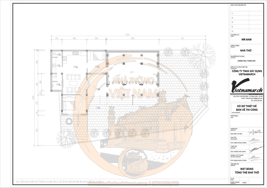
Với mặt bằng hiện trạng, kiến trúc sư Vietnamarch đã phân chia thành 2 khối chức năng rõ ràng:
-
Khối nhà thờ chính (bên phải)
-
Khối nhà ngang sinh hoạt (bên trái)
-
Khoảng sân chung phía trước kết nối hai khối
Đây là bố cục “tiền sân – hậu thờ – tả sinh hoạt”, rất hợp lý trong kiến trúc nhà thờ họ hiện đại. Tách biệt không gian tâm linh và sinh hoạt mà vẫn giữ được sự trang nghiêm cho khu thờ chính, tăng tính tiện nghi cho gia đình khi về tụ họp.
Nhà thờ họ có kích thước 8.2×8.5m (bao gồm cả hệ bậc tam cấp), bố trí theo kiểu nhà 3 gian truyền thống. Gian giữa là không gian thờ chính, 2 gian bên có thể lập ban thờ phụ hoặc sắp xếp sập gụ, tủ chè, trường kỷ. Cửa chính mở rộng → hướng ra sân → đúng nguyên tắc tụ khí – hướng minh đường.

***Xem thêm: Phối cảnh nhà thờ họ 3 gian 2 mái tại xã Lâm Bình, Tuyên Quang
4. Đặc điểm kiến trúc nhà thờ họ 3 gian giả gỗ tại Sông Công Thái Nguyên
4.1. Cảnh quan sân vườn
Theo hiện trạng thực tế, kiến trúc sư Vietnamarch đã tái cấu trúc lại khuôn viên, không gian nhà từ đường khoa học hơn, đảm bảo các công năng cần sử dụng của chủ đầu tư đưa ra.
- Sân gạch rộng phía trước giúp tạo khoảng không gian tập trung khi tổ chức lễ giỗ họ.
- Hệ cây xanh được bố trí xung quanh khu đất giúp không gian luôn thoáng mát.
- Lối đi bao quanh công trình thuận tiện cho việc di chuyển và chăm sóc cảnh quan.
- Tường rào và cổng được thiết kế theo phong cách truyền thống, đảm bảo sự riêng tư cho khu thờ tự.
Không gian sân vườn rộng rãi giúp tôn lên vẻ bề thế và trang nghiêm của công trình nhà thờ họ.

4.2. Kiến trúc nhà thờ họ 3 gian giả gỗ
Kiến trúc nhà thờ họ được thiết kế theo phong cách truyền thống nhưng sử dụng các vật liệu hiện đại để tăng độ bền và giảm chi phí bảo trì. Công trình sử dụng mái ngói đỏ truyền thống với độ dốc lớn giúp thoát nước nhanh và tạo vẻ đẹp cổ kính. Phần đỉnh mái là hình ảnh 2 con kìm nóc giữ mái nhà, vừa mang tính chất trang trí, vừa mang ngụ ý phòng ngừa hỏa hoạn, góp phần tăng tính thẩm mỹ cho công trình. Ở giữa là hoành phi với dòng chữ Hán Nôm Đức Lưu Quang.

Phía trước nhà thờ họ là hệ bậc ngũ cấp bằng đá tự nhiên, giúp nâng cao nền nhà so với sân. Điều này không chỉ mang ý nghĩa phong thủy mà còn tạo sự trang nghiêm cho công trình. Bậc tam cấp được thiết kế rộng rãi, thuận tiện cho việc di chuyển và tổ chức các nghi lễ truyền thống. Bên cạnh đó, bậc ngũ cấp còn là đại diện cho Sinh Lão Bệnh Tử Tử Sinh, 1 vòng tuần hoàn của con người, bắt đầu là sự khởi đầu và kết thúc không phải là hết, mà là đại diện cho một khởi đầu mời.
Thay vì sử dụng hoàn toàn gỗ tự nhiên, công trình sử dụng kết cấu bê tông cốt thép giả gỗ. Ưu điểm của giải pháp này:
- Độ bền cao, chống mối mọt
- Chi phí hợp lý hơn so với gỗ tự nhiên
- Giữ được vẻ đẹp truyền thống nhờ lớp sơn giả gỗ tinh xảo

Các cột hiên và hệ khung được xử lý màu sắc giống gỗ tự nhiên, tạo cảm giác sang trọng và cổ kính. Cửa chính của nhà thờ họ là hệ cửa gỗ đức bàn truyền thống, được chia thành nhiều ô pano với các chi tiết chạm khắc tinh tế. Loại cửa này thường xuất hiện trong các công trình đình, chùa, nhà thờ họ vì mang ý nghĩa:
- Tạo sự bề thế cho công trình
- Đảm bảo độ bền và chắc chắn
- Tăng giá trị thẩm mỹ và tính truyền thống

Phần hiên nhà được bố trí hệ cột tròn chắc chắn, tạo nên không gian chuyển tiếp giữa sân và nội thất bên trong. Các cột hiên được thiết kế đồng bộ với màu giả gỗ, giúp công trình trở nên hài hòa và trang trọng. Phần mái và đầu hồi được trang trí bằng các họa tiết hoa văn truyền thống mang phong cách cổ điển. Những chi tiết này giúp công trình không bị đơn điệu và tăng thêm nét nghệ thuật cho kiến trúc tổng thể.
4.3 Kiến trúc nhà phụ trợ
Cạnh nhà thờ họ là khu nhà phụ trợ được thiết kế liền kề với công trình chính.

Không gian này được thiết kế 2 ngủ, 1 khách, 1 bếp, khu WC, đảm bảo không gian sinh hoạt thường ngày. Không gian này có thể sử dụng cho nhiều mục đích như:
- Phòng tiếp khách khi họp họ
- Khu nghỉ ngơi cho con cháu khi về giỗ tổ
- Không gian sinh hoạt chung của dòng họ

Kiến trúc nhà phụ trợ được thiết kế đơn giản nhưng vẫn đồng bộ với nhà thờ họ chính nhờ sử dụng mái ngói đỏ và tông màu truyền thống.
5. Công ty thiết kế thi công nhà thờ họ tại Thái Nguyên uy tín với nhiều năm kinh nghiệm.
Vietnamarch là đơn vị có nhiều năm kinh nghiệm trong lĩnh vực thiết kế nhà thờ họ, từ đường, đình chùa và công trình tâm linh trên khắp cả nước. Với đội ngũ kiến trúc sư giàu kinh nghiệm, Vietnamarch luôn chú trọng:
- Giữ gìn giá trị kiến trúc truyền thống Việt Nam
- Kết hợp giải pháp kết cấu hiện đại để tăng độ bền công trình
- Thiết kế phù hợp phong thủy và văn hóa dòng họ
Mỗi công trình nhà thờ họ do Vietnamarch thực hiện đều được nghiên cứu kỹ lưỡng về kiến trúc, công năng và cảnh quan nhằm tạo nên không gian thờ tự trang nghiêm và bền vững theo thời gian. Nếu bạn đang ở Thái Nguyên cần tìm đơn vị thiết kế thi công nhà từ đường, nhà gỗ kẻ chuyền, đình chùa,… liên hệ ngay với Vietnamarch ngay hôm nay để được tư vấn cụ thể.
Nhà thờ họ Việt Nam – lưu giữ giá trị truyền thống dân tộc: 0904.202.880















Đánh giá
Chưa có đánh giá nào.